




Plot for sale
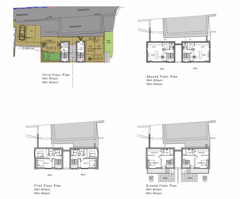
Rare investment opportunity with approved FULL planning for three detached dwellings on an expansive plot, along with an ideal four bed detached family home. The development includes one spacious 1,750 sq. ft. home (Plot 1) and two additional dwellings each just under 1,300 sq. ft. (Plots 2 & 3),...
Plot for sale
Description
Rare investment opportunity with approved FULL planning for three detached dwellings on an expansive plot, along with an ideal four bed detached family home. The development includes one spacious 1,750 sq. ft. home (Plot 1) and two additional dwellings each just under 1,300 sq. ft. (Plots 2 & 3),...
Contact Agent
Smart Picks — Professionals Relevant to This Land
Based on this property's key features, here are the specialists you may want to consult as part of your due diligence: land agents, rics surveyors, rural solicitors, planning consultants and land consultants.

Land Agents
Essential for navigating the land market, finding buyers, and securing the best price.

RICS Surveyors
High-value property (£400K+) requires professional valuation for accurate pricing and due diligence.

Rural Solicitors
Significant investment (£400K+) requires legal expertise for conveyancing, title checks, and transaction security.

Planning Consultants
Planning-sensitive site needs expert guidance for applications and development strategy.

Land Consultants
Multiple parcels or complex land structure requires expert analysis for optimal development strategy.
Location
Ramsden Street